香蕉视频官网入口 - 快换式指挥器操作型自力式压力调节阀


产品介绍 售后服务 快换式指挥器操作型自力式压力调节阀ZZYVP带指挥器操作型自力式压力调节阀(简称自力式压力调节阀)无需外加能源,利用被调介质自身能量为动力源,引入压力阀的指挥器以控制压力阀的阀芯位置,改变流经阀门的介质流量,使阀门后端压力(B型)或前端压力(K型)保持恒定。ZZYVP-16主要用在阀前压力较高(0,2-0,8MPa)而阀后力很低(0,5-100Kpa),例如50mmH2O(水柱)的场合,ZZVP-16K用在泄氮装置上,可与供氮装置配套使用。 香蕉视频。
1、气体减压
如阀前0,2-0,8MPa(高于0,8MPa时阀前面应加减压阀),阀后0,5-100KPa。 香蕉视频官网入口。
2、氮封装置
供氮和泄氮装置上
产品特点
1、压力设定在指挥器上实现,因而方便、快捷、省力省时且可在运行状态下连续设定。 2、控制精确度比ZZY型自力式高1倍左右,故适合在控制精确度高的场合使用。 3、对同一台阀而言,调节范围比ZZY型自力式广。 4、反应特别灵敏,极小的压力(如50mm水柱的压力)或极小的压力变化都可以感知出来。 5、减压比特别大,例如阀前0,8MPa,阀后50mmH2O,压差比达1600 香蕉视频app下载安装。

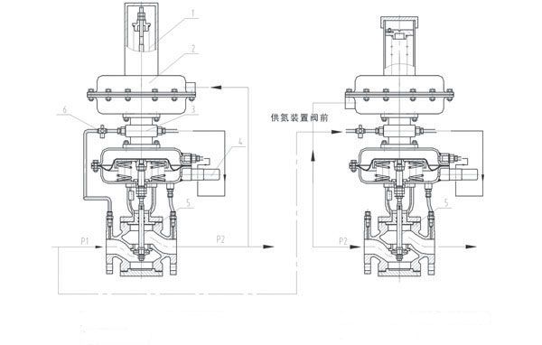
1. 压力设定弹簧2. 指挥器执行机构3. 指挥阀4. 针阀 5 在线观看香蕉视频. 主阀6. 空气过滤减压器.
其中ZZYVP-16B阀可以用1台ZZYP自力式压力调节阀+1台ZZVP型自力式微压调节阀代替
主要零件材料
零件名称 材料 阀体 ZG230-450. ZG0Cr18Ni9. ZG0Cr18Ni12Mo2 阀芯 1Cr18Ni9. 0Cr18Ni12Mo2(堆焊Stellite) PTFE 阀座 1Cr18Ni9. 0Cr18Ni12Mo2(堆焊Stellite) 阀杆 1Cr18Ni9 香蕉视频. 0Cr18Ni12Mo2 膜片 丁腈橡胶夹增强涤纶织物. 氟橡胶. 聚四氟乙烯 膜盖 Q235. Q235涂PTFE O形圈 耐油橡胶. 聚四氟乙烯 .
技术参数
主要技术参数和性能指标
外形尺寸重量
| 公称通径(DN) | 25 | 40 | 50 | 80 | 100 | 150 | |
| 法兰端面距(L) | PN16 | 160 | 200 | 230 | 310 | 350 | 480 |
| A | PN16 | 115 | 150 | 165 | 200 | 220 | 285 |
| B | PN16 | 85 | 110 | 125 | 160 | 180 | 240 |
| H1 | PN16 | 83 | 95 | 110 | 140 | 160 | 230 |
| H2 | PN16 | 325 | |||||
| H | PN16 | 650 | 680 | 750 | 790 | 840 | 990 |
| G | PN16 | 16 | 18 | 20 | 20 | 22 | 24 |
| S | PN16 | 308 | |||||
| nф | PN16 | 4-14 | 4-18 | 4-18 | 4-18 | 4-18 | 8-22 |
| 重量(kg) | 18 | 27 | 40 | 80 | 108 | 262 | |
应用举例
1、代替ZZV型自力式微压阀
ZZV型自力式微压阀阀前一般要求介质压力≤0,1MPa,而ZZYVP带指挥器操作型自力式压力调节阀则不受此限制。 香蕉视频app下载安装。
2、用于氮封装置
氮封装置的贮罐内成品油上端覆盖氮气,其压力一般在100mmH2O左右,通过氮封保护装置加以控制,出液阀开启放油时,贮罐内液位下降 在线观看香蕉视频,此时,ZZYVP-16B供氮调节阀开度增大,向贮罐内补充氮气使压力增加到设定值为止,进液阀开启进油时,液位上升,气相部分容积减小,氮气压力上升,此时ZZYVP-16B供氮调节阀关闭,而ZZVP-16K泄氮调节阀在压力控制器作用下开启,排出氮气使压力降至设定值,为确保储罐安全,应在罐顶设置呼吸阀。
供氮压力调整:在ZZYVP-16B型压力调节阀选定一设定值如1KPa(100mm,W 香蕉视频最新版,C),通过调整主弹簧1的预压缩(拉伸)量来达到;.
泄氮压力调整:在ZZVP-16K泄放阀中的压力控制器部分,通过调整主弹簧预压缩量达到,一般为避免氮封装置启闭频繁,泄氮设定值应远离供氮压力设定值,如2Kpa(200mm,W 香蕉视频,C)。。
呼吸阀设定值调整:在上述两设定值调整好后,为避免呼吸阀启闭频繁,呼吸阀设定值应大于泄压设定值,两者设定期亦不能靠得太近,呼吸阀型号为:ZZFQ-10,ZZYVP-16B压力设定值为PC,ZZVP-16K压力设定值P1,PC与P1两值不能靠得太近,以免阀门工作太频繁 香蕉视频官网入口,呼吸阀的排放压力P2的设定值应大于P1,P2与P1两值也不能靠得太近,三者关系PC< P1< P2。

(1) 严格按照合同要求,提供符合设计标准,质量合格的产品。
(2) 严格检查和控制原材料、原器件、配套件的进厂质量。
(3) 保证所供设备加工工艺完善、检测手段完备。产品绝不带缺陷出厂。
(4) 对涉及分包商的供货、质量、设备性能、技术接口、服务等方面问题全部责任。按合同规定的关键部件必须符合有关资质的要求,并经需方认可。
(5) 按合同规定向监造单位提供有关部门标准和图纸,并为监造提供方便并对监造设备的停工待检部位提前7天通知需方及监造代表,需方所派监造是督促我方按标准生产合格产品,但并不减我方的一切质量责任。
(6) 对设备制造过程中出现的质量缺陷及时向需方和监造代表通报、不隐瞒。若设备缺陷超过合同规定的标准,供方无条件更换。在安装和试运行过程中,设备出现质量问题,先处理问题,再分清责任,一切以满足工程进度需要为准则。
(7) 为所供的设备在制造、运输、装卸过程中投保,-旦发生意外,我方将按需要对所供设备尽快进行免费更换、修理,直到需方满意为止。
(8) 在开箱过程中如发现缺件及其他原因引起的零部件丢失,我方负责尽快免费补齐所缺零部件。在设备的安装、调试过程中以及今后在设备运行中发现的质量问题,如属我方原因,我方承担责任。
(9) 按时向需方提供按合同规定的全部技术资料和图纸。有义务在必要时邀请需方参与我方的技术设计审核。
(10) 按需方要求的时间到现场进行技术服务,指导需方按我方的技术资料和图纸的要求进行安装、试运行及试生产。
(11) 对于需方先购的与合同设备有关的配套设备,我方主动提供满足设备接口要求的技术条件和资料。
(12) 严格执行供需双方就有关问题召开会议的纪要或协议。
(13) 按合同规定免费为需方举办有关设备安装、调试、使用、维护技术的业务培训班。
(14) 加强售前、售中、售后服务,把"24小时服务"、"超前服务"、"全过程服务"、 "终身服务"贯彻在产品制造、安装、调试、大修的全过程。
(15) 接到需方反映的质量问题信息后,在24小时之内作出答复或派出服务人员,尽快到达现场,做到用户对质量不满意,服务不停止。
(16) 免费为产品提供终身维护,凡我厂用户,均建立了详尽的用户档案,我厂售后服务。人员实行定期回访,巡视制度,指导用户的日常维护,及时指出并解决可能出现的故障。
(17) 随时满足需方对备品备件的要求,终身为用户提供质优价廉的零配件。

